
MIL-DTL-11352K(AT)
TABLE V. Temperature profile.
Time
Temperature
Time
Temperature
(hours)
°C
(°F)
(hours)
°C
(°F)
0100
35 (95)
1300
69 (156)
0200
34 (94)
1400
70 (158)
0300
34 (94)
1500
71 (160)
0400
33 (92)
1600
70 (158)
0500
33 (92)
1700
67 (153)
0600
33 (91)
1800
63 (145)
0700
36 (97)
1900
55 (131)
0800
40 (104)
2000
48 (118)
0900
44 (111)
2100
41 (105)
1000
51 (124)
2200
39 (103)
1100
56 (133)
2300
37 (99)
1200
63 (145)
2400
35 (95)
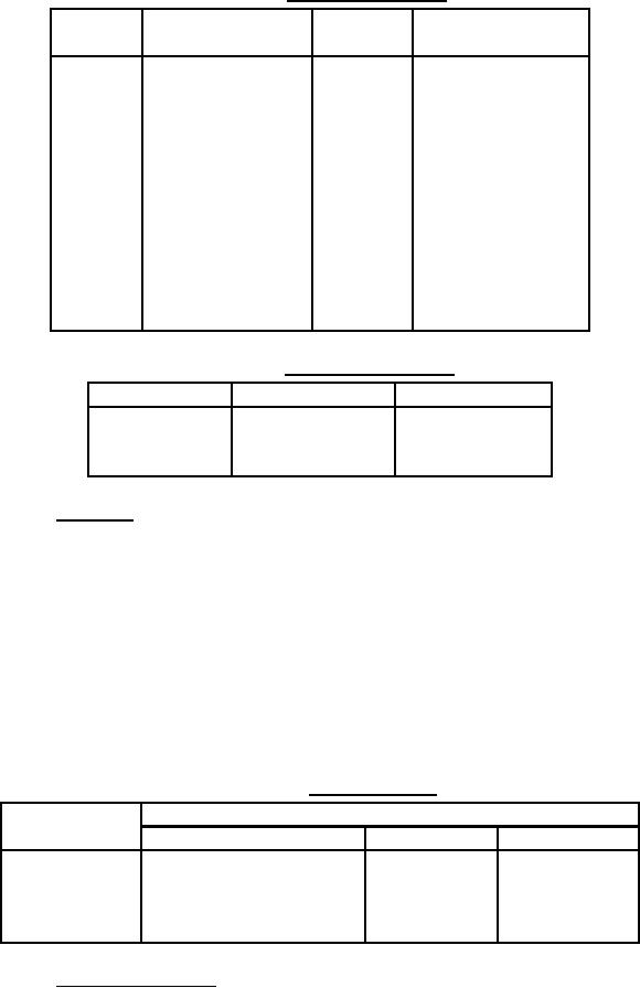
TABLE VI. Gun fire shock levels.
Amplitude (g)
Duration (ms)
Axis
100±10
1.0±0.1
Vertical
55±5.5
1.7±0.2
Latitudinal
225±22.5
0.5±0.05
Longitudinal
4.6.4.6 Vibration. To determine conformance to 3.7.6, the vision block shall be
mounted, in a manner that will simulate its actual use, and vibrated along each axis in accordance
with the test levels specified in table VII and as shown in figure 3 for a frequency range from
5 to 500 to 5 Hz applied within a sweep time of 15 minutes for a maximum cycling time of 3
hours. The frequency of applied vibration shall be swept over the specified range
logarithmically in accordance with figure 4. The specified sweep time is that of an ascending
plus a descending sweep and is twice the ascending sweep time shown in figure 4 for the
specified range. When vision block resonances below 5 Hz are measured or expected, the test
curve shall be extended to 2 Hz and the sweep time shall be 18 minutes (2 to 500 Hz). At the
conclusion of the test, the vision block shall be tested in accordance with 4.6.3.1, 4.6.3.2 and
4.6.3.3 and checked for any damage or defect.
TABLE VII. Vibration levels.
Frequency,
Amplitudes
Hertz (Hz)
Vertical
Latitudinal
Longitudinal
5 - 5.5
±0.5 in.
±0.5 in.
±0.5 in.
5.5 - 25
±1 g
±1 g
±1 g
25 - 37
±0.02 in. (peak to peak)
±0.02 in.
±0.02 in.
37 - 500
±2 g
±2 g
±2 g
4.6.4.7 Humidity resistance. To determine conformance to 3.7.7, the vision block shall
be exposed to a total of 48 hours (two 24-hour cycles) to the humidity profile shown in
13
For Parts Inquires call Parts Hangar, Inc (727) 493-0744
© Copyright 2015 Integrated Publishing, Inc.
A Service Disabled Veteran Owned Small Business